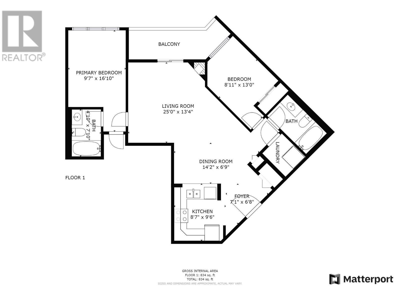
Great views! Great suite! Great Complex! It doesn't get any better than this! Well laid out two bedroom and two bath condo in a very central Radium Hot Springs location! Well funded and stable quiet complex- with healthy reserve funds and low strata fees of $364.52 that include your building insurance, building maintenance, water, sewer, and electricity!!! Affordable living!!! Underground parking with a storage cage, hassle free living, walkability and great views of the Rocky Mountains- seriously awesome! Whether it is to live in year-round or even as a long-term rental investment #207 Aspen checks the boxes and just makes sense- being sold mostly furnished! Don't hesitate on this one! (id:4069)
Address
4875 RADIUM Boulevard Unit# 207
List Price
$289,000
Sold Price
$267,000
Sold Date
12/11/2024
Property Type
Single Family
Type of Dwelling
Single Family
Transaction Type
Sale
Area
British Columbia
Sub-Area
Radium Hot Springs
Bedrooms
2
Bathrooms
2
Floor Area
834 Sq. Ft.
Year Built
2006
Maint. Fee
$364.52
MLS® Number
2480042
Listing Brokerage
Mountain Town Properties
Postal Code
V0A1M0

























